KAUFEN ► BAUEN ► WOHNEN
Verschiedene projektierte Bauvorhaben.
Ein- & Mehrfamilien Häuser, Grundstücke
Wohnanlagen
Sehr gut durchdachter Bungalow in Mettlach-Orscholz. Ruhige und sonnige Lage!
Dieses Bauvorhaben ist projektiert.

Die Erdarbeiten und Befestigungen am Grundstück sind bereits abgeschlossen. Die Bodenplatte für das Haus und für die Garage sind auch schon fertig.
ca. 86m² Wohnfläche
ca. 300m² Grundstück


Grundstück, Erdarbeiten & Bodenplatten
129.000,-€
Grundstück, Erdarbeiten, Bodenplatte & Pläne (2 Varianten) inkl. Baugenehmigung
147.000,-€
_________________________
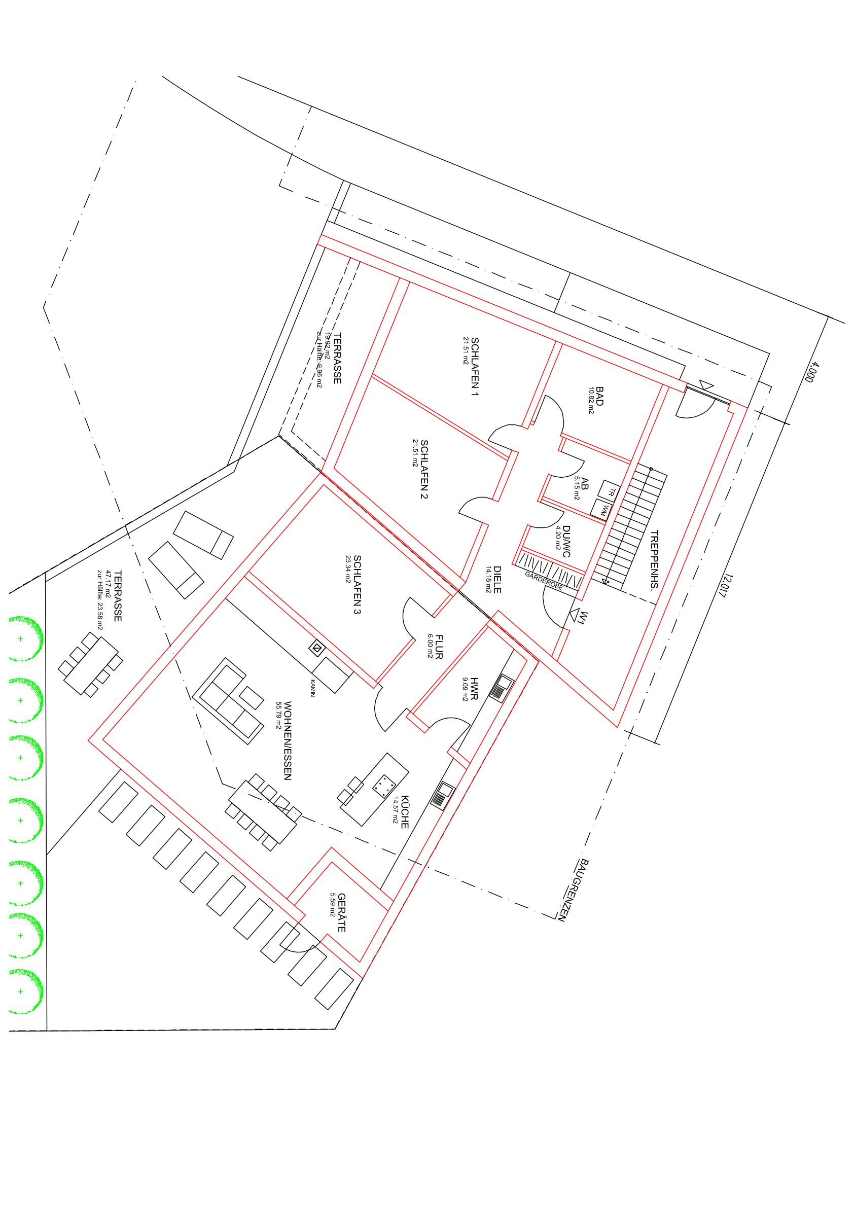
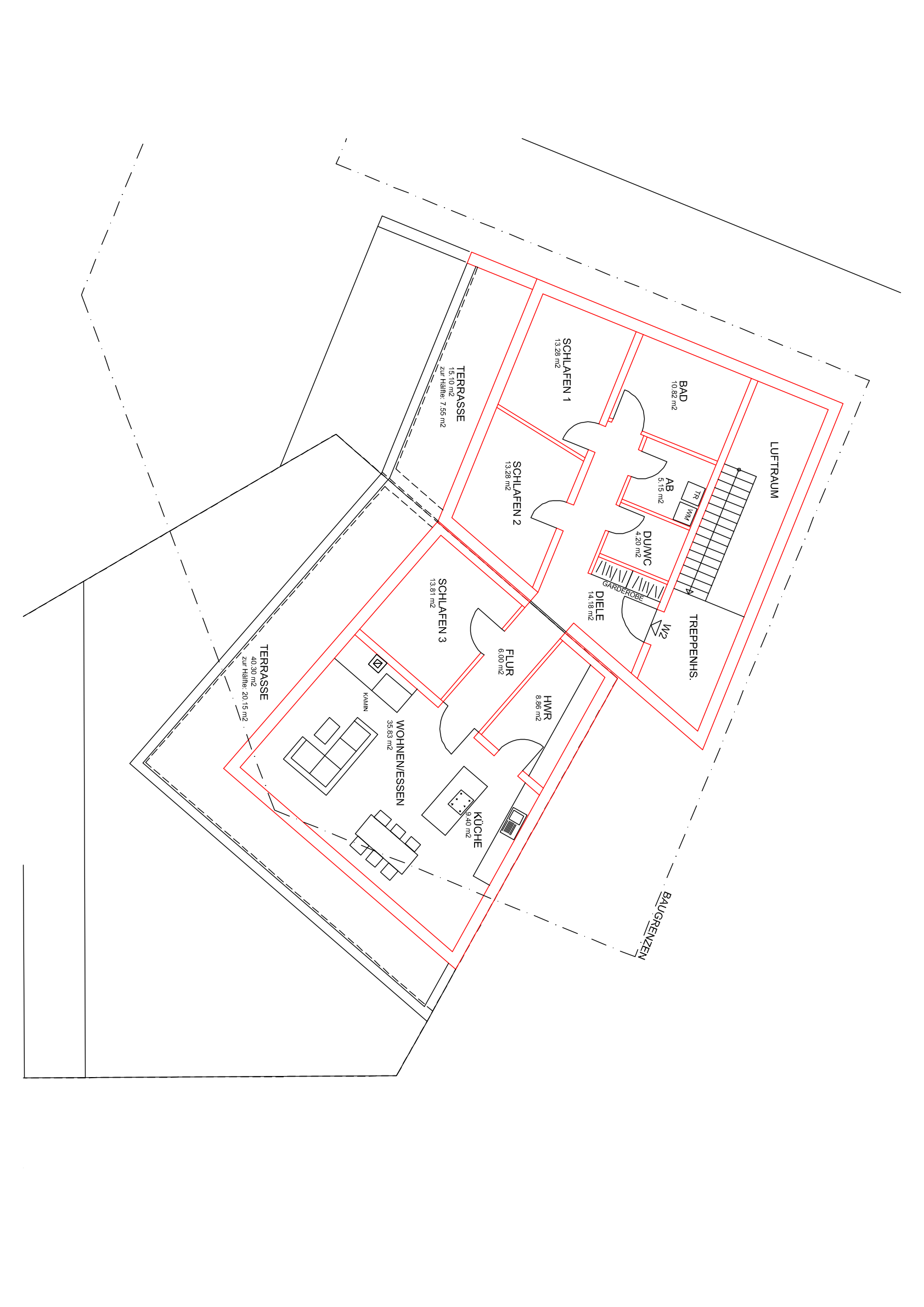
2 große und sehr exklusive Wohnungen mit 360° Traum- und Weitsicht in Merzig.
Dieses Bauvorhaben ist projektiert und noch nicht gebaut !




Das Grundstück ist leicht auf der Höhe und man hat von dort aus eine Traum Aussicht über das Ganze Tal bis auf die andere Saarseite.
ca. 2.000m² Grundstück
Kann auch nur das Grundstück verkauft werden.
286.000,-€
___________________
Neubau (coming soon)
Dieses Objekt ist projektiert, aber noch nicht gebaut !

